
Это топки для каминов, выполненные монолитно из массивного чугуна, как одна крепкая и надежная конструкция, без применения сварных швов, болтовых соединений и герметиков.
Чугунная монолитная каминная топка средних размеров c плоскоим стеклом. Продолжение серии Retro. Массивная чугунная рамка графитового цвета на вид увеличивает топку. Рекомендуется для традиционных порталов.
Цельнолитые чугунные каминные вставки Tarnava- энергоэффективные отопительные приборы, с помощью которых можно обеспечить экономное отопление дома. Принцип работы таких каминов заключается в том, что нагретый воздух сначала накапливается в воздушной шахте над топкой, после чего разводится по дому воздуховодами.
В этой модели воротки регуляции процесса горения и зольник расположены снаружи на фасаде топки. Благодаря этому можно легко отрегулировать интенсивность пламени без использования дроссельной заслонки и вынуть ящик зольника без открывания дверцы. Такой вариант придется по душе любителям функциональности
Может оборудоваться регулируемыми по высоте ножками. Способ открытия дверки: камин с боковым открытием.
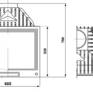
| Вес, кг | 210 |
| Длина поленьев, см | 52 |
| Диаметр дымохода, мм | 180 |
| Мин/макс. мощность, кВт | 14 - 21 |
| Площадь обогрева, м2 | 140 - 220 |
| Тип стекла | прямое |
| Открывание дверцы | боковое (в сторону) |
| Рамка дверцы | чугунная |
| Пиролизное грение | да |
| Производитель | Tarnava (Польша) |
| Назначение | воздушное отопление |
| Материал корпуса | монолитный чугун |
| Конфигурация топки | одностороняя |
| Номинальная мощность, кВт | 18 , 21 |
| КПД, % | 78 |
| Подача воздуха | с улицы |
| Система "чистое стекло" | да |
| Топливо | дрова, брикеты |
| Режим горения | непрерывный |