
Чугунная монолитная каминная топка средних размеров. Продолжение серии Retro с двухстворчатым решением открывания.
Эта серия отвечает самым изысканным вкусам. Идеально подходит для старинных помещений в стиле Барокко.
Это широкий модельный ряд монолитных каминных топок от официального представителя польской компании Tarnava. Основными преимуществами таких каминов является доступная цена, высокие эксплуатационные показатели, высокое качество, подтвержденное европейскими сертификатами и 10 летней гарантией.
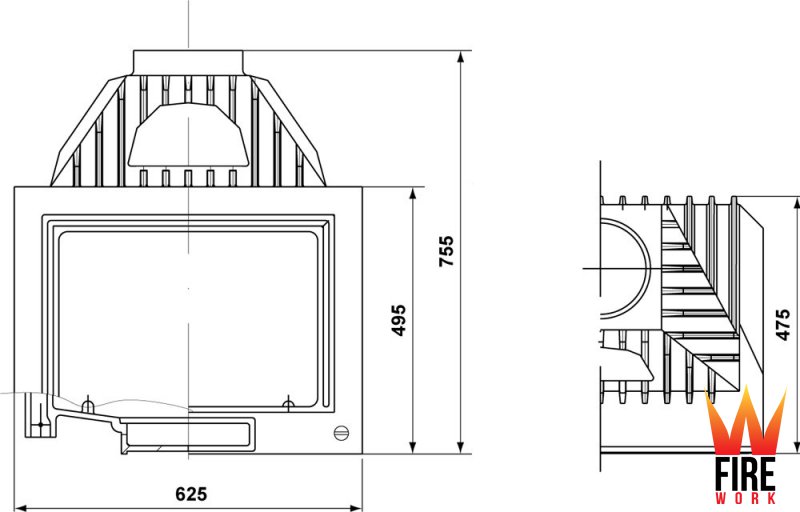
В этой модели воротки регуляции процесса горения расположены снаружи на фасаде топки, а зольный ящик спрятанный под дверцей благодаря этому можно легко отрегулировать интенсивность пламени без использования дроссельной заслонки. Для того, что бы вынуть зольник, нужно просто открыть дверцу.
| Вес, кг | 185 |
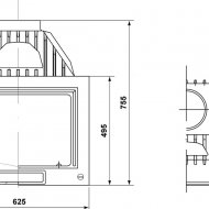
| Длина поленьев, см | 47 |
| Диаметр дымохода, мм | 160 |
| Мин/макс. мощность, кВт | 11 - 18 |
| Площадь обогрева, м2 | 110 - 190 |
| Тип стекла | прямое |
| Открывание дверцы | боковое (в сторону) |
| Рамка дверцы | чугунная |
| Пиролизное грение | да |
| Производитель | Tarnava (Польша) |
| Назначение | воздушное отопление |
| Материал корпуса | монолитный чугун |
| Конфигурация топки | одностороняя |
| Номинальная мощность, кВт | 18 , 21 |
| КПД, % | 78 |
| Подача воздуха | с улицы |
| Система "чистое стекло" | да |
| Топливо | дрова, брикеты |
| Режим горения | непрерывный |